Seahawk Crossing
Room Details
- Furnishings in the room: dresser, desk with chair, bed, mattress, closet
- Furnishings in the apartment: couch, chair, end table
- Bathrooms are shared
- Dresser:
- L 3ft, W 2ft, H 29"
- Closet:
- with door
- Bed:
- Beds are loftable
- L 7' x W 3' x H 6' (with stacked bed posts)
- One bed post: H 3 ft
- Mattress:
- Extra Long twin (36" x 80" x 7")
- Desk
- L 3 1/2 ft, W 2ft, H 4 1/2 ft
- Window
- L 36", H 64"
- Blinds
- Room Size
- 4 Bedroom:
- Bedroom: 9' 0.75"x 9' 7"
- Living Room: 9' 9" x 12' 8.5"
- Kitchen: 15' 2.38" x 10' 0.5"
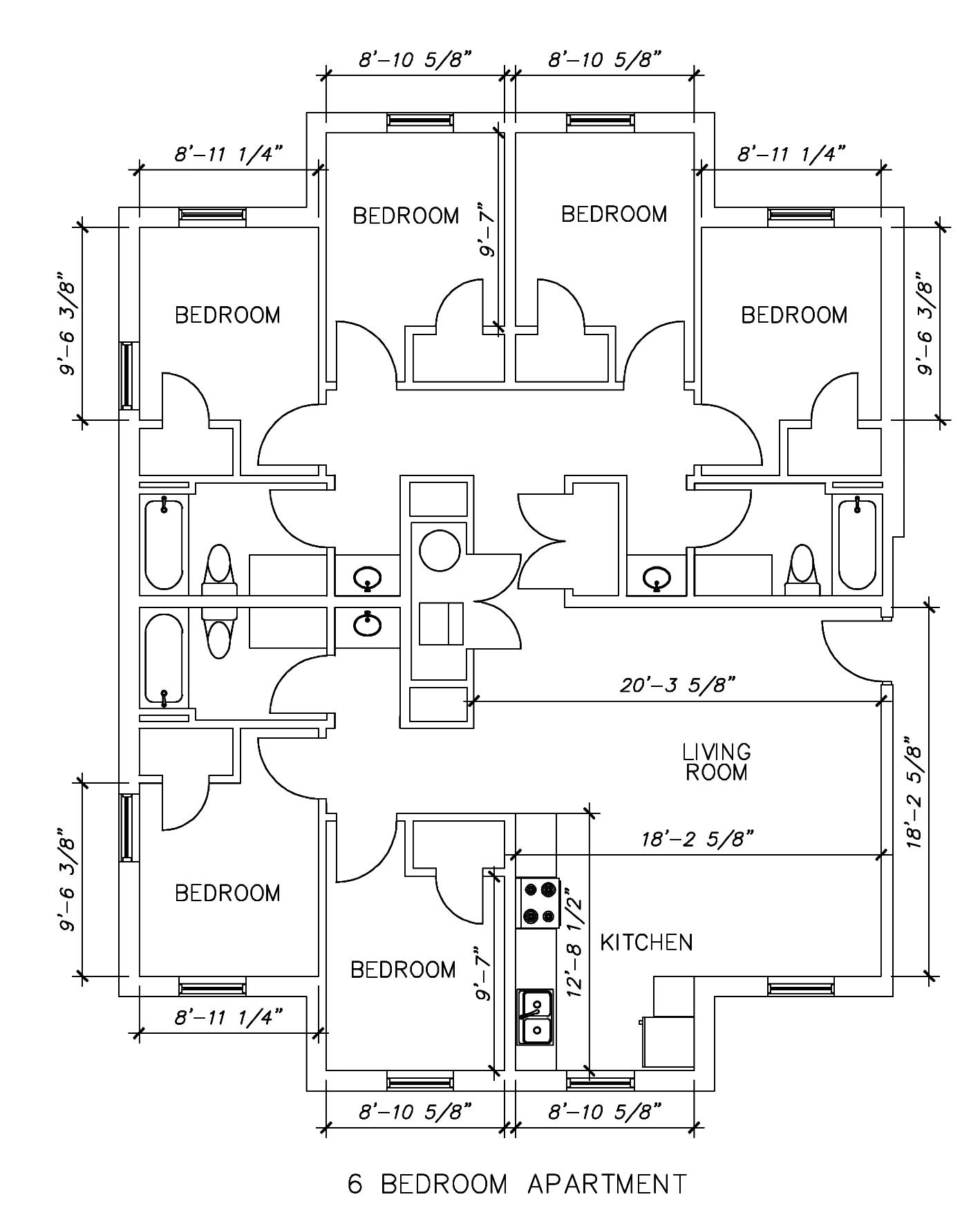
- 6 Bedroom:
- Bedroom:8' 10.63" x 9' 7"
- Living Room: 18' 2.63" x 20' 3.63"
- Kitchen: 8' 10.63" x 12' 8.5"
- 8 Bedroom:
- Bedroom: 8' 11.63" x 9' 7"
- Living Room: 12' 1.25" x 24' 7.38"
- Kitchen: 10' 9" x 9' 4"
- 4 Bedroom:
Floor Plans:
4 Bedroom Apartment-

6 Bedroom Apartment:

8 Bedroom Apartment:
*If you are having trouble viewing these images please reach out to us.
- Apartment Style
- Each Apartment includes
- Living room
- Dining room
- Kitchen
- Washer and Dryer
- Bathroom(s)
- Bed Spaces: 662
- Single Gender Apartments
- Shared Bathroom Facilities
- Smoke Detectors/Fire Sprinklers
- Smoke-Free
- Visitation: 24-Hour
To send mail and packages by U.S. Postal Service mail, follow this addressing formula:
Student's Full Name
UNCW Station - CB#_ _ _ _ _
601 South College Road, Wilmington NC 28407-_ _ _ _
Add the last 4 digits of the campus box number after the UNCW zip code.Find your mailbox number.
Questions? Email UNCW Housing or call 910.962.3241 and we will be happy to help!