Skip to header Skip to Content Skip to Footer

University Suites

Room Details

  • Furnishings: dresser, desk with chair, bed, mattress, wardrobe
  • Bathrooms are shared 
  • Dresser:
    • L 3ft, W 2ft, H 29"
  • Wardrobe:
    • Inside hanging space: L 3ft, W 2ft, H 57" 
    • Bottom drawer space: 16" 
    • Full height: 75"
    • No closet
  • Bed:
    • Beds are Loftable
    • L 7ft, W 3 ft, H 6 ft (with stacked bed posts)
    • One bed post: H  3 ft
  • Mattress:
    • Extra-long twin (36″x80″x7")
  • Desk
    • L 3 1/2 ft, W 2ft, H 4 1/2 ft
  • Window
    • L 36", H 64"
    • Blinds
  • Room Size
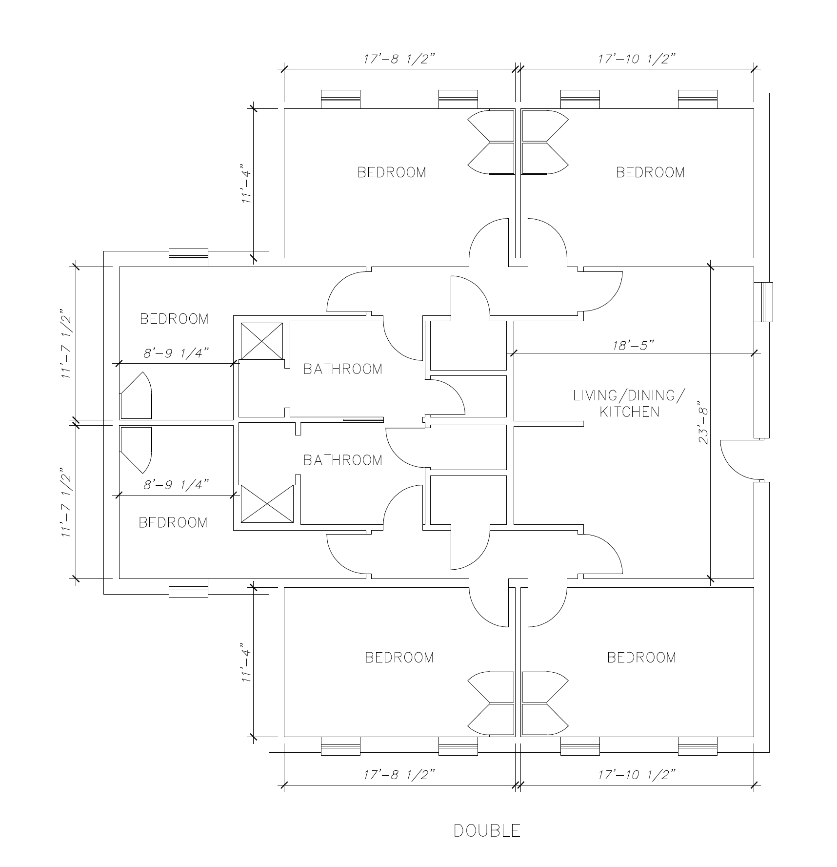
    • Double
      • Bedroom: 11' 4" x 17' 8.5"
      • Common Area: 23' 8" x 18' 5"
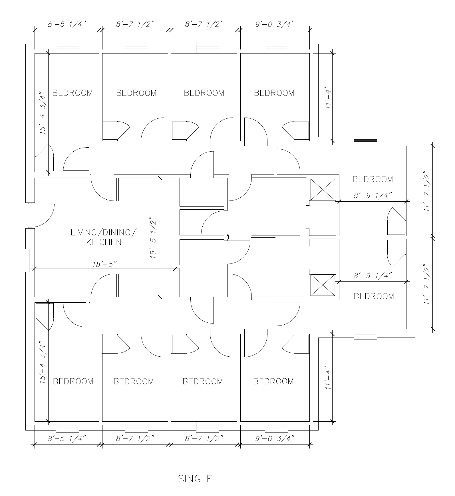
    • Single
      • Bedroom: 8' 7.5" x 11' 4"
      • Common Area: 15' 5.5" x 18' 5"

Floor Plans:

Double-

UniversitySuites-Double-FloorplanSingle-

University Suites - Single - Floorplan*If you are having trouble viewing these images please reach out to us.

  • Pod Style
  • Each University Suites Pod includes 
    • Living room
    • Dining room
    • Kitchenette
  • Bed Spaces: 400
  • Single Gender Pods
  • Shared Bathroom Facilities
  • Smoke Detectors/Fire Sprinklers
  • Smoke-Free
  • Visitation: 24-Hour

ATo send mail and packages by U.S. Postal Service mail, follow this addressing formula:

Student's Full Name
UNCW Station - CB#_ _ _ _ _
601 South College Road, Wilmington NC 28407-_ _ _ _

Add the last 4 digits of the campus box number after the UNCW zip code.Find your mailbox number.

Questions? Email UNCW Housing or call 910.962.3241 and we will be happy to help!

Contact Us

India Adams, Residence Coordinator

Tommy Steele, Assistant Residence Coordinator

Phone: 910.962.3241

Email: ts9323@uncw.edu